コスモ二条城東 504号室 御所南小学校区の賃貸(IR003139)
[物件種別:マンション]
| 賃料/管理費等 | 16.6万円/9,000円 | 敷金 | 1ヵ月 | 礼金 | 1ヵ月 |
|---|---|---|---|---|---|
| 保証金 | 0円 | 解約引 | 契約年数 | 2年 | |
| 更新料 | 1ヵ月 | その他費用 | 〇保証会社加入要 〇退去時清掃費:77000円(税込) 〇更新時更新事務手数料:11000円(税込) 〇書類代:11000円(税込) | ||
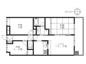
| 間取り | 3LDK | 面積 | 62.02m2 | 築年月 | 1998年9月 |
| 住所 | 京都府京都市中京区古城町384-6コスモ二条城東 | ||||
| アクセス |
京都市営地下鉄烏丸線烏丸御池駅
徒歩 7分
京都市営地下鉄東西線烏丸御池駅 徒歩 7分 京都市営地下鉄東西線二条城前駅 徒歩 4分 |
||||
- 分譲マンション
- オートロック
- エレベーター
- システムキッチン
- 洗面所
- 追炊き機能
- 礼金無
- 敷金無
- エアコン
- ペットOK
- 楽器相談
- 宅配BOX
- 駐車場有
- BS/CSアンテナ
- インターネット
- 床暖房
- バス・トイレ別
- ユニットバス
- 室内洗濯機置場
- ウォシュレット
- 浴室乾燥機
- フローリング
- トランクルーム
- 1階店舗
- CATV
- 南向き
- TV付インターホン
- 飲食店可
- 新築
- ルームシェアOK
- 保証会社要加入
- 田の字地区
- 御所南学区
- 御所東学区
- 御所西エリア
- 御所北エリア
- 西陣エリア
部屋の写真・間取りなど
-
画像を拡大表示
コスモ二条城東 小川御池上る 御池通りまですぐです。メイン通りからは少し入り静かな環境です。
-
画像を拡大表示
5階南向き 3LDK(62.02u) 2021年12月全面リフォーム済み
-
画像を拡大表示
-
画像を拡大表示
カウンターキッチンの使いやすい間取りです!
-
画像を拡大表示
琉球畳ですっきりとした空間です。
-
画像を拡大表示
リビング横に和室があり広々として開放感がございます
-
画像を拡大表示
3口ガスコンロ付きのシステムキッチン
-
画像を拡大表示
個室型のキッチンです。油ものもリビングに飛ばず安心ですね。
-
画像を拡大表示
洗髪洗面化粧台 シャワー付きです。洗面台横にちょっとした棚が置けます。
-
画像を拡大表示
-
画像を拡大表示
-
画像を拡大表示
追い炊き機能付きの浴室です。
-
画像を拡大表示
-
画像を拡大表示
洋室6帖です。窓の下側は室外機置場です。
-
画像を拡大表示
和室4.5帖です。
-
画像を拡大表示
ウォシュレット付きのトイレ
-
画像を拡大表示
奥行きがありゆったりとしたバルコニーです。
物件の概要
| 名称 | コスモ二条城東 504号室 御所南小学校区の賃貸 | 構造 | 鉄骨鉄筋コンクリート |
|---|---|---|---|
| 間取り詳細 | 洋6×洋4.5×和6×LDK12.5(壁芯62.02u) | 駐車場 | 近隣 |
| 所在階/階数 | 5階 (10階建て) | 採光面 | 南 |
| 設備・条件 | 分譲マンション/オートロック/エレベーター/システムキッチン/洗面所/追炊き機能/エアコン/宅配BOX/駐車場有/バス・トイレ別/室内洗濯機置場/ウォシュレット/フローリング/南向き/保証会社要加入/田の字地区/御所南学区 | ||
| 入居日 | 即日 | ||
| 備考 | ○2021年12月に内装全面リフォーム済み! | ||
地図情報


[物件担当者コメント]
条件変更になりました!賃料17.6万円から16.6万円に賃料ダウン♪
見学可能です!ぜひご覧ください
コスモ二条城東は御所南小学校区、京都御池中学校区の分譲賃貸マンションです。地下鉄烏丸線烏丸御池駅から徒歩7分。地下鉄東西線二条城前駅から徒歩4分の立地です。マンションは御池小川を少し北上した小川通り沿いにあります。小川通りは交通量が少なく、昼間も静かで中心部に近い立地ですが、落ち着いた住環境です。
マンションから徒歩数分圏内にスーパーマーケット、コンビニ、ドラッグストアー等あり毎日の買い物にも便利な場所です。また、二条城、中京区役所にも近く、マンションは利便性の高い立地で、快適で理想の住まいです。堀川遊歩道も徒歩数分で朝のお散歩や、二条城の周回はジョギングにもおすすめです。
物件は2021年12月に内装を全面リフォーム済みです!
10階建ての5階部分で南向きのバルコニーです。間取りは3LDKで約62平米ございます。リビングはカウンターキッチンになっております。キッチンはシステムキッチンです。ガスコンロは3口です。和室は琉球畳でおしゃれですっきりとした雰囲気があります。リビングの隣は和室で開放感がございます。バルコニーも奥行きがあり窮屈な感じはございません。
駐車場満車、近隣空き有(10/4時点)