左京区田中下柳町 2階店舗事務所 内装リフォーム済み!(IR003141)
[物件種別:事業用]
賃料/管理費等 | 10.56万円/0円 | 敷金 | 1ヵ月 | 礼金 | 2ヵ月 |
---|---|---|---|---|---|
保証金 | 0円 | 解約引 | 契約年数 | 3年 | |
更新料 | 1ヵ月 | その他費用 | ○保証会社加入(フォーシーズ) ○水道は:検針実費 ○更新事務手数料:16500円(税込) | ||
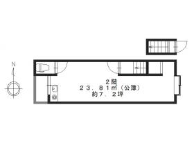
間取り | 面積 | 23.81m2 | 築年月 | 1974年12月 | |
住所 | 京都府京都市左京区田中下柳町8-97 | ||||
アクセス |
京阪鴨東線出町柳駅
徒歩 3分
叡山電鉄叡山本線出町柳駅 徒歩 3分 |
- 分譲マンション
- オートロック
- エレベーター
- システムキッチン
- 洗面所
- 追炊き機能
- 礼金無
- 敷金無
- エアコン
- ペットOK
- 楽器相談
- 宅配BOX
- 駐車場有
- BS/CSアンテナ
- インターネット
- 床暖房
- バス・トイレ別
- ユニットバス
- 室内洗濯機置場
- ウォシュレット
- 浴室乾燥機
- フローリング
- トランクルーム
- 1階店舗
- CATV
- 南向き
- TV付インターホン
- 飲食店可
- 新築
- ルームシェアOK
- 保証会社要加入
- 田の字地区
- 御所南学区
- 御所東学区
- 御所西エリア
- 御所北エリア
- 西陣エリア
部屋の写真・間取りなど
-
画像を拡大表示
左京区田中下柳町 2階の店舗事務所 ご案内可能です!
-
画像を拡大表示
約7.2坪 内外装リフォーム!
-
画像を拡大表示
東側 東西に窓があり風通しが良く、日当たりも良好です!
-
画像を拡大表示
クロス、フローリングが張替えされ綺麗になりました!
-
画像を拡大表示
ワンフロアー1戸です。天井の照明器具新設!
-
画像を拡大表示
ウォシュレット付きのトイレ
-
画像を拡大表示
-
画像を拡大表示
1階出入口から専用の階段です。
-
画像を拡大表示
最寄りのコンビニまで徒歩約3分!
-
画像を拡大表示
最寄りのドラッグストアまで徒歩約2分♪
-
画像を拡大表示
最寄りの郵便局です。徒歩約2分!
-
画像を拡大表示
最寄り駅の叡電出町柳駅まで徒歩約3分です。
-
画像を拡大表示
最寄り駅の京阪出町柳駅まで徒歩約3分です。
-
画像を拡大表示
前道 南方面
-
画像を拡大表示
前道 北方面
-
画像を拡大表示
外装予定図です。土間打ち、北面壁も改修されます!
-
画像を拡大表示
-
画像を拡大表示
物件の概要
名称 | 左京区田中下柳町 2階店舗事務所 内装リフォーム済み! | 構造 | 木造 |
---|---|---|---|
間取り詳細 | 約7.2坪 | 駐車場 | 無し |
所在階/階数 | 2階 (2階建て) | 採光面 | 東 |
設備・条件 | エアコン/保証会社要加入 | ||
入居日 | 即日 | ||
備考 | ※飲食店不可 ※面積は公簿面積 ○トイレ、ミニキッチン、天井照明あり! |
地図情報

[物件担当者コメント]
京阪出町柳駅から徒歩3分のテナント物件!
2階建ての2階部分。約7.2坪。東西に窓があり風通し良好です。8月中に内装のリフォーム完了。トイレ、台所は新設されます。エアコンも設置予定です!都市ガスございません。
物件は内外装ともにリフォームが施されています。壁紙、床は全面張替えされ、トイレとミニキッチンが新設されます。
塾、教室、アトリエ、ギャラリー、物販店、事務所使用に適した店舗事務所物件です。飲食店、美容室は不可です。
京阪出町柳駅に徒歩3分の近さです。出町柳駅から南東方向です。物件向かいは幼児園がございます。アクセスの良い場所です。周辺は住宅やマンションが密集した地域で商店もございますが住宅地エリアです。京都大学にも近い地域です。出町柳駅周辺は飲食店、ドラッグストアー、コンビニ、スポーツジム等さまざまなお店があり賑わいがございます!
見学可能です。お気軽にお問合せください!