MACHI WORK御所西 3E号室(IR003148)
[物件種別:事業用]
| 賃料/管理費等 | 13.75万円/8,800円 | 敷金 | 1ヵ月 | 礼金 | 2ヵ月 |
|---|---|---|---|---|---|
| 保証金 | 0円 | 解約引 | 契約年数 | 2年 | |
| 更新料 | 1ヵ月 | その他費用 | ○水道料金:月額3000円 ○火災保険加入要 ○清掃代(入居時):44000円(税込) ○賃料、共益費、礼金は税込表示です | ||
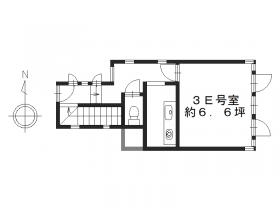
| 間取り | 面積 | 21.89m2 | 築年月 | 1987年3月 | |
| 住所 | 京都府京都市上京区堀松町419MACHI WORK御所西 | ||||
| アクセス |
京都市営地下鉄烏丸線丸太町駅
徒歩 2分
京都市営地下鉄烏丸線烏丸御池駅 徒歩 12分 京阪本線神宮丸太町駅 徒歩 15分 |
||||
- 分譲マンション
- オートロック
- エレベーター
- システムキッチン
- 洗面所
- 追炊き機能
- 礼金無
- 敷金無
- エアコン
- ペットOK
- 楽器相談
- 宅配BOX
- 駐車場有
- BS/CSアンテナ
- インターネット
- 床暖房
- バス・トイレ別
- ユニットバス
- 室内洗濯機置場
- ウォシュレット
- 浴室乾燥機
- フローリング
- トランクルーム
- 1階店舗
- CATV
- 南向き
- TV付インターホン
- 飲食店可
- 新築
- ルームシェアOK
- 保証会社要加入
- 田の字地区
- 御所南学区
- 御所東学区
- 御所西エリア
- 御所北エリア
- 西陣エリア
部屋の写真・間取りなど
-
画像を拡大表示
MACHI WORK御所西 外観 烏丸通りに面した3階建てビルです
-
画像を拡大表示
3階建て3階部分 東側で烏丸通りに面した区画です
-
画像を拡大表示
3階の共用トイレ
-
画像を拡大表示
3階の給湯室
-
画像を拡大表示
-
画像を拡大表示
-
画像を拡大表示
1階から2階に上がる階段
- 画像を拡大表示
物件の概要
| 名称 | MACHI WORK御所西 3E号室 | 構造 | 鉄骨ALC造 |
|---|---|---|---|
| 間取り詳細 | 約6.6坪 | 駐車場 | 近隣 |
| 所在階/階数 | 3階 (3階建て) | 採光面 | 東 |
| 設備・条件 | 保証会社要加入/御所西エリア | ||
| 入居日 | 空き予定 | ||
| 備考 | ○トイレ、給湯室は共用部にございます | ||
地図情報


[物件担当者コメント]
MACHI WORK御所西は地下鉄烏丸線丸太町駅から徒歩2分のテナントビル 烏丸通りに面しております ビルの向かいは京都御所がありアクセスが良く、また京都御所の緑もあり落ち着いた地域で絶好のロケーション また、丸太町通りは市バスの路線も充実してります 近隣には京都府庁、文化庁、京都第二赤十字病院、京都地方裁判所等がございます
ビルは鉄骨ALC造で3階建て 物件は3階部分の東側 烏丸通りに面した区画で室内からは京都御所の眺望がございます!
面積は21.89u 約6.6坪 ワンフロアーに2区画ございます 各フロアーにトイレと給湯室がございます